+7 (343) 213-22-11

e-ural@mail.ru

Производство высоковольтного оборудования

Трансформатор ТМГ-63-10(6)/0,4

 
   

Трансформаторы силовые (распределительные) масляные серии ТМГ - предназначены для работы в электросетях напряжением 6 или 10 кВ в открытых электроустановках в условиях умеренного и умеренно-холодного климата (исполнение У1 и УХЛ1 по ГОСТ 15150-69) и служат для понижения высокого напряжения питающей электросети до установленного уровня потребления.

Значения номинальных линейных напряжений трансформаторов

6/0,4 кВ или 10/0,4 кВ

Окружающая среда

невзрывоопасная, не содержащая токопроводящей пыли

Высота установки над уровнем моря

не более 1000 м

Режим работы

длительный

Температура окружающей среды

от -45 оС до +40 оС - У1

от -60 оС до +40 оС - УХЛ1

Регулирование напряжения в пределах

Uном ±2х2,5%*

Диапазон номинальных мощностей

   

от 25 до 1000 кВА

Схемы и группы соединений обмоток

У/Ун-0; Д/Ун-11; У/Zн-11

Рабочая частота

50 Гц

Трансформаторы не предназначены для работы в условиях тряски, вибраций, ударов, в химически активной среде.

Структура условного обозначения трансформатора

Пример записи условного обозначения трансформатора мощностью 25 кВА герметичного исполнения с высшим напряжением 10 кВ низшим напряжением 0,4 кВ, схемой и группой соединения У/Ун-0, климатического исполнения УХЛ, категории размещения 1, при его заказе и в документации другого изделия - «Трансформатор типа ТМГ-25-10/0,4 УХЛ1, У/Ун-0, ТУ 16-93 ВГЕИ.672133.002 ТУ».

Смотреть все трансформаторы ТМГ 

 

 

Технические данные ТМГ-63

Нормируемая мощность, кВА

63

Высокое напряжение, кВ

10 (6)

Низкое напряжение, В

400

Схема и группа

соединений

У/Ун-0;

Д/Ун-11; 

У/Zн-11

Потери КЗ, Вт

1270

Напряжение КЗ, %

4,5

Потери холостого хода, Вт

210

Частота, Гц

50

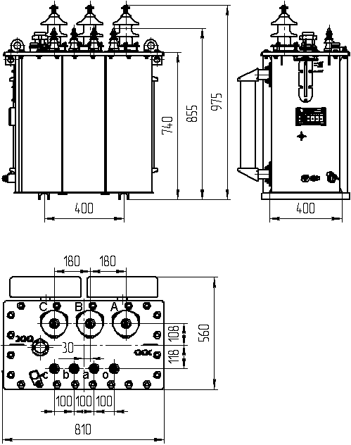
L, мм

810

B, мм

560

H, мм

975

Установочные размеры, мм

400 х 400

Масса масла, кг

85

Полная масса, кг

390

ПБВ

±2 х 2,5%

 

Вернуться к разделу